YURUNGA

Location

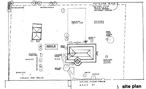
1 GRAY STREET RAINBOW, HINDMARSH SHIRE

File Number

11/008735-01

Level

Registered

Statement of Significance

After its initial period as a sheep farming area, the Mallee deteriorated until it became a wasteland, a breeding ground for rabbits. The lack of confidence in the area was expressed in the vermin-proof fence which extended from Swan Hill (NSW border) to the South Australian border along the 36th parallel, cordoning it off from the remainder of Victoria.

A number of factors led to the Mallee's recovery and Yurunga embodies the brief heyday of this metropolis of the Mallee when Rainbow's population reached its zenith. It was the centre of the Mallee land boom, collector of more wheat than any other area in Victoria (in 1909) and optimism in its expanding future knew no bounds. Yurunga has historical associations with two families who made large contributions to the Mallee's regeneration. The Cust family had connections with western Victoria since the 1840s. As the railways extended into the Mallee, opening up new and revitalising existing towns, the Cust family established a network of general stores in their wake - in Beulah, Brim, Warracknabeal, Hopetoun and of course, Rainbow. The Liesfield brothers on the other hand, were farmers and came from South Australia in the 1880s, pioneers who cleared the mallee scrub with an axe and they are representative of the south Australian migration and the large part these people from over the border played in the Mallee's development. FR Liesfield and his wife occupied Yurunga for over 40 years and were significant figures in the local community.

Architecturally Yurunga is a unique combination of influences. Italianate in form, Federation style in its finishes, adaptive to its context in the innovative inclusion of a sunken room to escape the heat, its plumbing systems and the use of local masonry material which in its construction technique expresses the South Australian influence in the region. The homestead is the most substantial in the district belonging to an age which vanished after the 1914-18 war and it is virtually intact. The interiors are significant examples of Edwardian decoration and the metal ceilings are exceptional in the delicately executed paintwork that highlights the relief patterns. The building is unusual in its use of materials that were relatively new at the time such as the AC roof, art metal ceilings and Art Nouveau glazing and tiles, etc. that if obtainable today, are hardly ever used.

Since the Dimboola Shire purchased Yurunga in 1969 the Rainbow Historical Society has built up an excellent collection of furniture and household items - some lent, some donated, typical of the time and/or Mallee, Wimmera region. The number of visitors to the house each year is testimony to the importance of the building (enhanced by the museum) in this part of Victoria.

Group

Residential buildings (private)

Category

Stables