| Back to search results » | Back to search page » |
|
What is significant? Ten acres of land were set aside as a Church of England Reserve in
the Brighton Estate planned by Henry Dendy and J. B. Were in 1841.
This site was located in a small township of fashionable crescents,
between the outer crescent and desirable allotments which ran to Port
Phillip Bay. An Episcopal Church, erected to the south of the site in
1842, was used as a church and school, however the formation of Church
Street isolated it from the main site soon after construction. This
site was not conveyed to the church in 1843 and subsequent development
took place on the remaining land. In 1843 a two acre graveyard, established to the north-east of the
first building, was consecrated and the first burial took place the
following year, well before the opening of the Brighton General
Cemetery in 1855. More than three hundred burials took place, mostly
before 1860, and the graves of many district pioneers are located in
this graveyard. The last burial took place in 1948, however an
adjoining garden of memory, established in the 1950s, remains in use. An ironstone church, designed by architect Charles Laing, was erected
to the north-west of this graveyard in 1850. By 1857 the congregation
had outgrown this building and parishioner and architect Charles Webb,
and his partner Thomas Taylor, were commissioned to design a new
bluestone church, school house and vicarage. The 1850 church was
demolished and some of the stone used in the construction of the
T-shaped school house building. This school continued to operate until
1875 when students were relocated to a new school in Brighton. The
school house was then used for Sunday School and other church
activities. In the subsequent years Brighton developed as a popular middle class
suburb and by 1886 necessary additions were made to the church. Large
sandstone transepts and a chancel were added to the existing bluestone
church nave by architect Lloyd Tayler. A north wing was also added to
the school house, creating a symmetrical H-shaped building. This was
either undertaken in 1866 by Charles Webb or in 1886 by Lloyd Tayler.
Webb called tenders for additions to the Church of England schools in
Brighton that year, and this may have been this addition. Designed in
a Gothic Revival style, the symmetrical school house is constructed of
random coursed, locally quarried ironstone and is roofed in slate. It
has projecting gabled end wings, a central projecting entry porch and
render detailing that includes parapets, finials, angle buttresses,
window and door surrounds and gable vents. The St Andrew's parish hall, designed by architect Louis Williams,
was built to the east of the school house in 1925. The Arts and Crafts
influenced building is constructed of clinker brick and the
symmetrical front facade contains a broad central gable roof with
central jerkinhead bellcote. The exposed brick interior of the
building contains oversized timber hammer beam trusses and large
folding timber doors which line both sides of the central hall. All
timber work remains unpainted. At this time Brighton Grammar School, established in 1882, received
in trust five acres of the original ten acres of land granted to the
Church of England in 1841. A school building designed by architects
Hudson and Wardrop, was constructed to the east of the church, and
Brighton Grammar moved to the new site in 1927. The school used the
'cow paddock' to the north of the church and graveyard for a sports
ground from about 1928. A very close affiliation was then established
between St Andrew's church and the school. The original vicarage, located north of the church, was demolished in
1928 and was rebuilt further south on the site of the 1850 church.
Detailing would suggest that Hudson and Wardrop may have also designed
this new vicarage. A lych gate was erected to the west of the church
after the death in 1926 of George Jefferson, a vestryman at St
Andrew's. This rustic timber structure, with hipped terracotta tiled
roof, shows the influence of the Arts and Crafts movement, and may
have been designed by Louis Williams. In 1961 a fire destroyed much of the church at St Andrew's and
parishioner, and prolific church architect, Louis Williams was
commissioned to design a new church. He incorporated the remaining
portion of Webb's bluestone nave as a chapel, and designed a vast
building capable of holding a large congregation. At the time it was
anticipated that St Andrew's was to become the cathedral church for
the Mornington Peninsula Diocese when the Melbourne Diocese was
divided. This church building was dedicated in December 1962 in the
presence of the Governor of Victoria, Sir Dallas Brooks; the
Archbishop of Melbourne, Frank Woods; clergy and two thousand people. Williams' design re-orientated the church by setting a new nave, of
some sixty metres in length, at right angles to the surviving portion
of the 1857 building. This Early English Gothic section, typical of
the work of Charles Webb, was reduced in length and used as a Pioneer
Chapel and baptistery, and linked to the narthex of the new building
by an arcaded cloister. The symmetrical west facade, with its gable
belfry, bracketed string course, triple lancet windows and pinnacled
corner buttresses, has therefore been retained. The new church is simple in form with a shallow gable roof,
surmounted by a narrow, copper spire, covering a textured red brick
building. Pointed arch headed openings are used to convey a Gothic
character. The interior employs cream bricks, anodised aluminium
acoustic ceiling tiles and blue vinyl flooring (since replaced). It
features subdued window glass, banks of singularly placed aluminium
uplights either side of the sanctuary, a gallery organ and war
memorial surrounds, an echo organ and timber furniture designed by
Williams and crafted by the well established Melbourne furniture
maker, Fallshaw and Sons. Tasmanian oak, fumed, stained and hand
finished, was used for the large array of furniture. Pulpit and
lectern panels were created by Reine Slagmolen to designs by William
using a blue 'polylite' material and Napier Waller was commissioned to
design a mural for the Pioneer Chapel, which replaced the former west
window. Many of Louis Williams' ecclesiastical design ideas are apparent at
St Andrew's church. His desire for generous planning is manifest
throughout the church with well spaced pews, a clear view of the
altar, wide aisles, a spacious sanctuary and a choir gallery at the
rear with a spacious narthex below. A windowless sanctuary end, lit by
concealed side lighting, was also favoured by Williams. Originally
intended to contain mosaic work, this recess now features a bronze
sculpture of the prodigal son, by Guy Boyd. It was installed in 1987,
the new church's twenty fifth anniversary. Other developments on the site include the addition of tennis courts,
probably early in the twentieth century, and the construction of two
brick houses adjacent to the graveyard and an opportunity shop between
the school house and the parish hall in the 1980s.
How is it significant?
Why is it significant? The graveyard at St Andrew's, Church of England, Brighton is of
historical significance as an extremely early, pre-gold rush parish
church graveyard and as a rare surviving example in suburban
Melbourne. Other examples were established later and include Scots
Presbyterian Church graveyard, Cambellfield (VHR H0127, 1855) and St
Helena Church Cemetery, Greensborough, 1856. The graveyard at St Andrew's, Church of England, Brighton is of
historical significance for the tombstones of early Victorian pioneers
and prominent citizens, and their families, contained within it. These
include Jonathan B. Were, leading merchant and agent and founder of J.
B. Were and Son (d. 1885); Henry B. Foot, surveyor and planner of the
Brighton township (d. 1857); William A. Brodribb, pastoralist and
politician (d. 1886) and Thomas Higinbotham, chief engineer of the
Victorian Railways (d.1880). The retention of a wooden memorial
headstone (date unknown) is of significance. The school house at St Andrew's, Church of England, Brighton is of
historical significance as a rare surviving example of a substantial
early denominational school building. The school house at St Andrew's, Church of England, Brighton is of
architectural significance as one of the few surviving examples of
Charles Webb's distinctive institutional buildings and as a rare
example of a building constructed of local ironstone. The church at St Andrew's, Church of England, Brighton is of
architectural significance for the section of building which survives
from 1857. This is a fine example of the distinctive ecclesiastical
work of prolific Melbourne architect, Charles Webb, who was a
parishioner of the church and designed such buildings as the Royal
Arcade (1869,VHR H0023) and the Windsor Hotel (1884, H0764) and many
churches in Victoria. The church at St Andrew's, Church of England, Brighton is of
architectural significance for the highly intact section built in 1962
and designed by the parishioner and highly prolific church architect,
Louis Williams. Williams, who was Victoria's, and possibly
Australia's, major ecclesiastical architect of the Arts and Crafts
tradition from the 1920s to the 1970s, designed more than 130
churches, including cathedrals, for every diocese in Victoria as well
as every State of Australia. As one of his later works in which he
designed and supervised every aspect of the job, St Andrew's is
considered as amongst his greatest achievements. It has significance
as an example of a modern/traditional building, which exhibits both
the lightness of modern architecture and the clear expression of its
purpose as a church. The parish hall at St Andrew's, Church of England, Brighton is of
architectural significance as an intact and early example of the work
of Louis Williams in an Arts and Crafts manner. It presents a
particularly fine interior with exposed brick (painted over then
sandblasted) and extraordinarily oversized hammer bean trusses which
create a highly distinctive character. The lych gate is also a fine
example of a structure designed in the Arts and Crafts style. The church at St Andrew's, Church of England, Brighton is of
aesthetic significance for the furniture and fittings throughout the
church which were designed by Louis Williams and manufactured by the
established firm of Fallshaw and Sons. This extensive and intact
assemblage of meticulously detailed, modern timber church furniture is
highly significant. The blue 'polylite' lectern and pulpit panels,
aluminium sanctuary uplights, the font, the war memorial organ and
echo organ are also of note. The church at St Andrew's, Church of England, Brighton is of
aesthetic significance for the mural created by important artist,
Napier Waller and the later bronze sculpture by artist, Guy Boyd of
the well known Melbourne Boyd family.
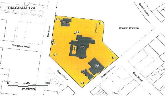
The St Andrew's Church Precinct consists of a graveyard (1843),
school house (1857), church (1857 and 1962), parish hall (1925), lych
gate (post 1926), gate post (1842-50) and vicarage (1928). A number of
objects are associated with the church including furniture designed
for the building.
TheSt Andrew's Church of England Precinct, Brighton is of
historical, architectural and aesthetic significance to the State of Victoria.
TheSt Andrew's Church of England Precinct, Brighton is of
historical significance as an extensive and highly intact church
complex which has associations with the early history of the Anglican
Church in Victoria. It contains a graveyard, school house, church,
parish hall, lych gate and vicarage which are all significant and
intact contributory elements from the nineteenth and twentieth
centuries. Together they demonstrate the development of a significant
Anglican church site, which was destined to be the cathedral centre of
the proposed Mornington Diocese if the anticipated division of the
Melbourne diocese had occurred.
Cemeteries and Burial Sites
Cemetery/Graveyard/Burial Ground